haleykong

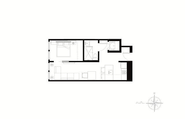
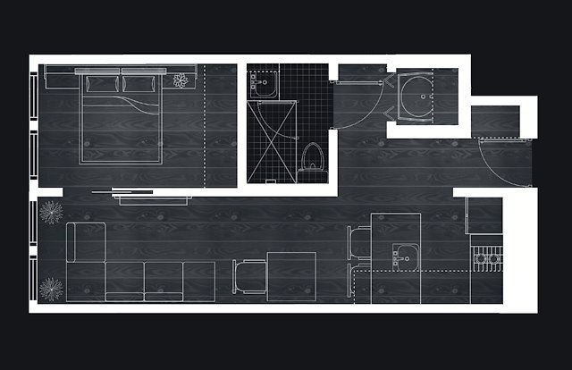
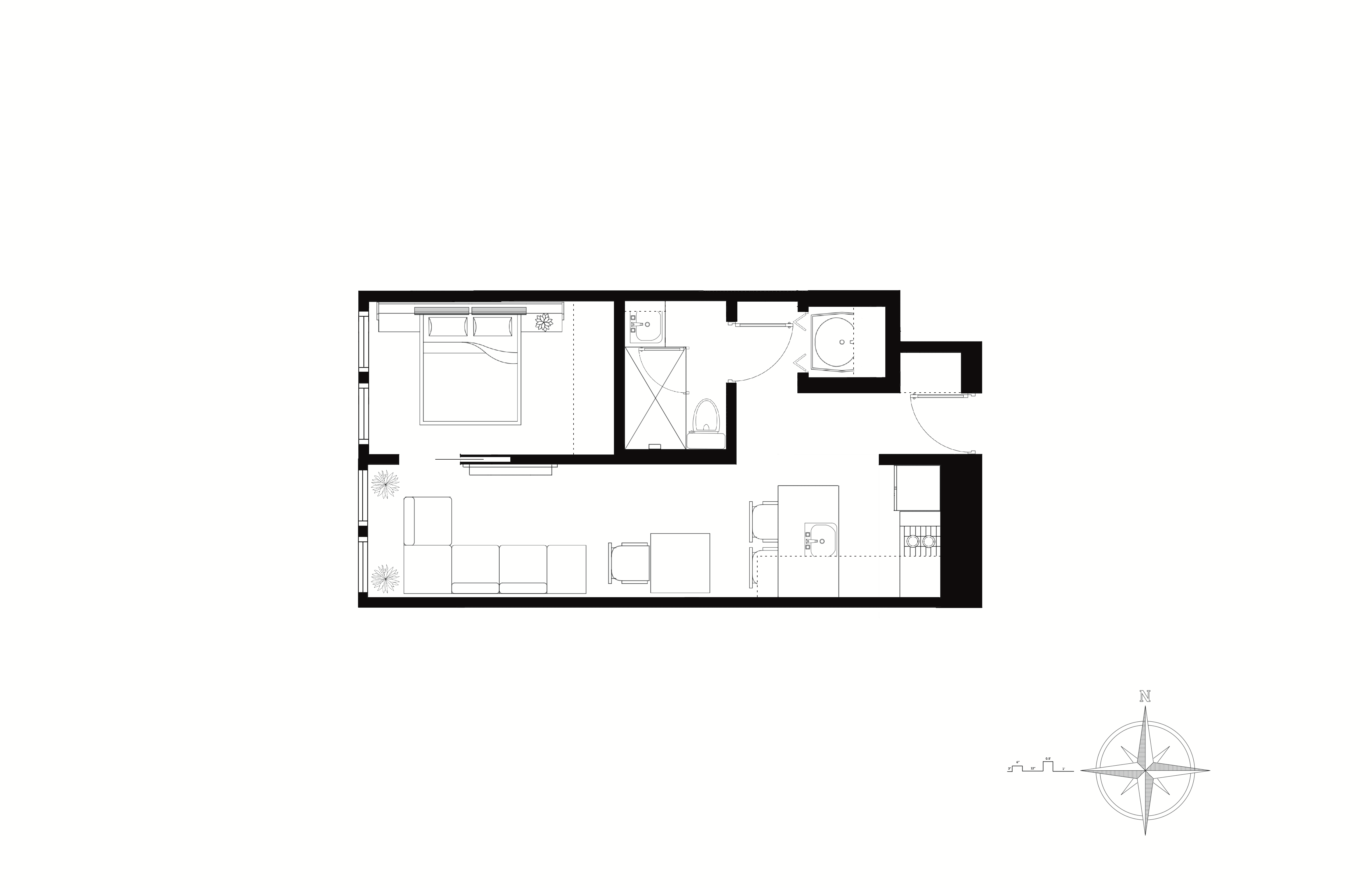
ABOUT THIS FLOOR PLAN

This design was inspired by my time living at Nema Chicago and Sentral Michigan Avenue, both located in South Loop, Chicago. With long narrow hallways and unobstructed floor to ceiling windows, this modern Chicago luxury interior reflects the original Two-Six Flat Apartment Interiors that were developed after the Great Chicago Fire of 1871. The design supports the Bachelor lifestyle, fit for students and fresh graduates attending school within the Loop: Roosevelt, Depaul, Loyola, and the School of the Art Institute of Chicago.